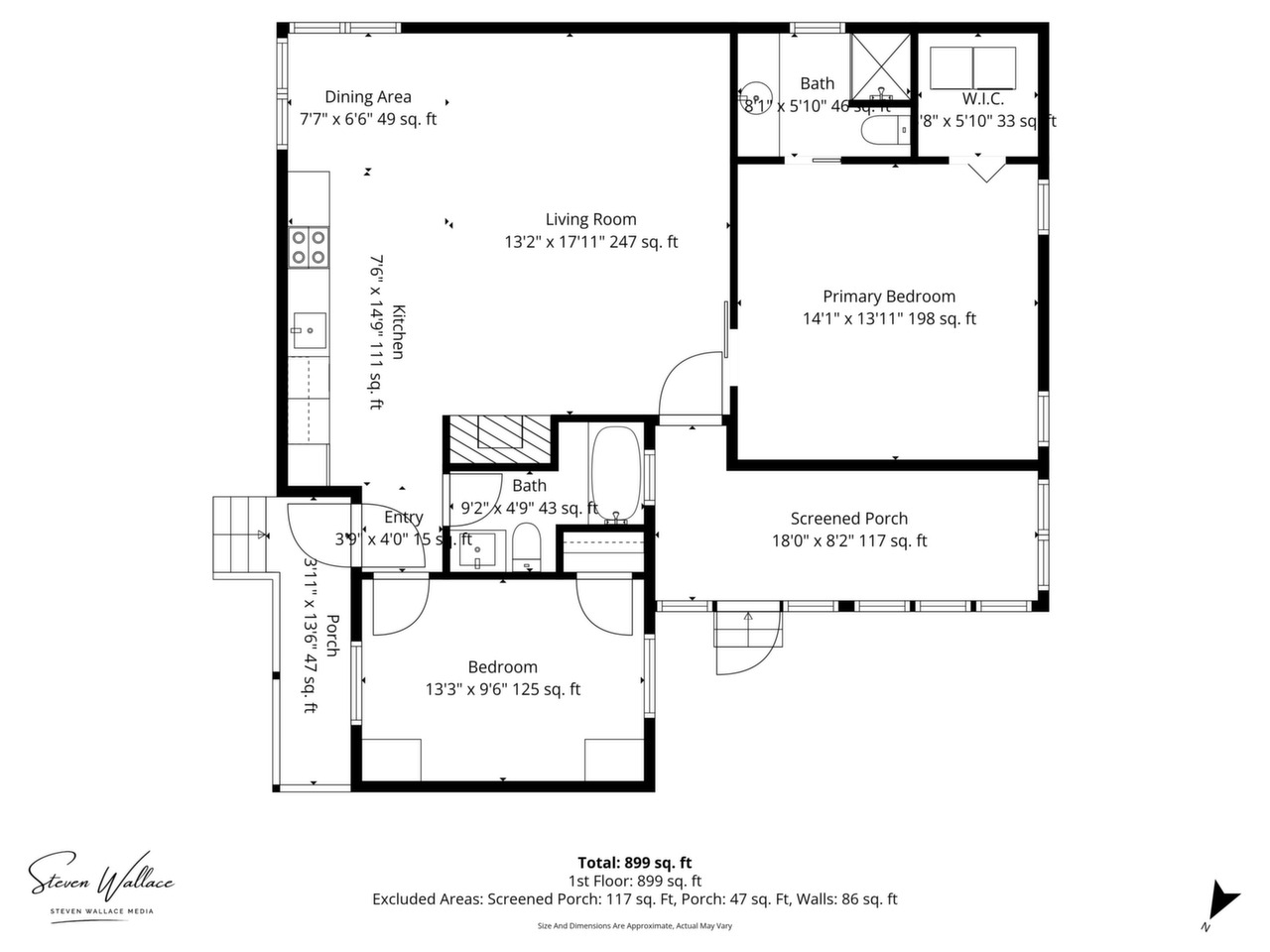
Floor Plan