804 Ranch Ct
Lords Valley, Pennsylvania 18428
804 Ranch Ct
Lords Valley, Pennsylvania 18428
Location
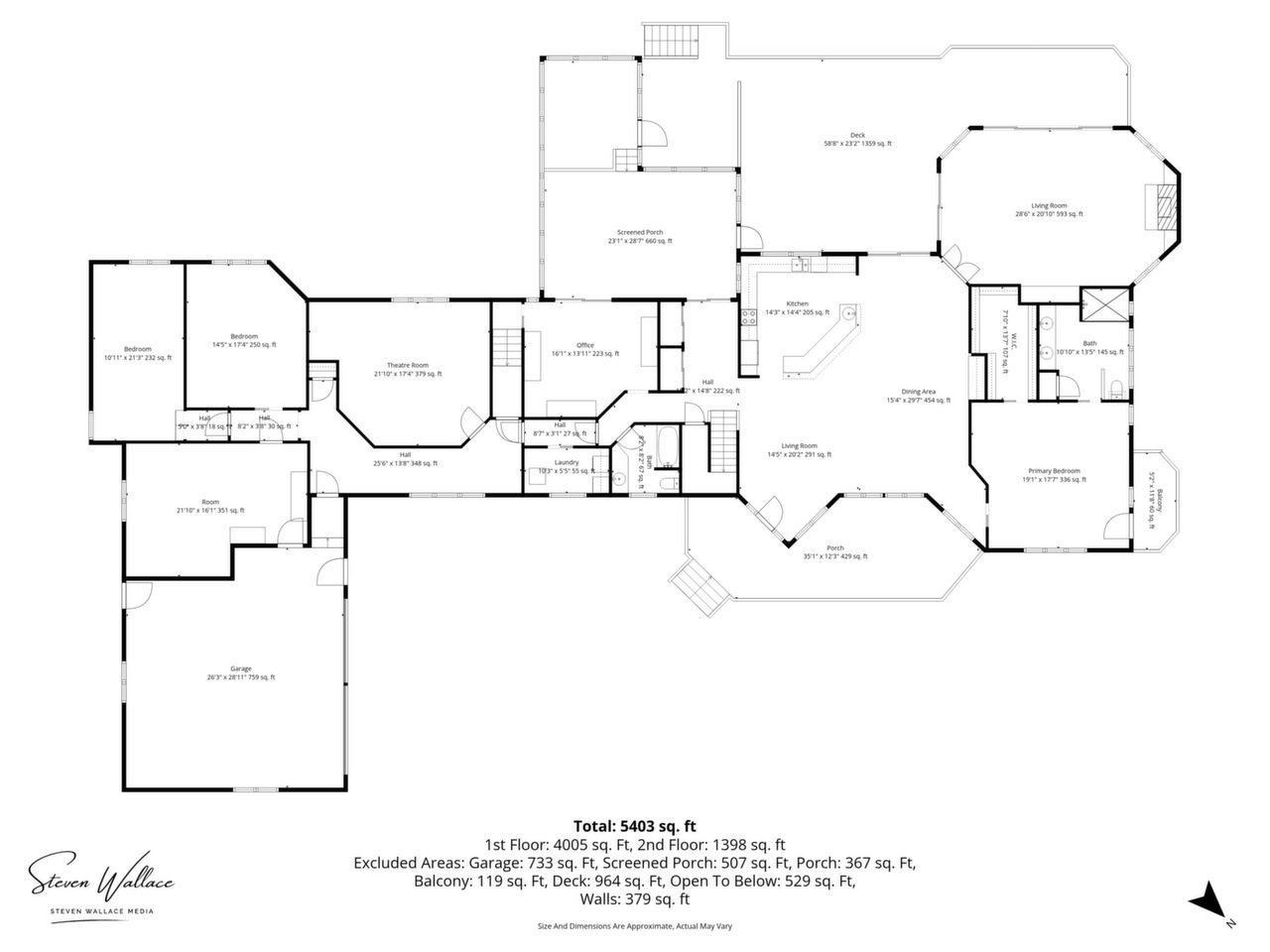
Floor Plan
- 1st Floor
- 2nd Floor
- All Floors
* This information is deemed reliable but not guaranteed and has not been verified